Traiconi Imobiliare utilizează fişiere de tip cookie pentru a personaliza și îmbunătăți experiența ta pe Website-ul nostru. Înainte de a continua navigarea pe Website-ul nostru te rugăm să aloci timpul necesar pentru a citi și înțelege conținutul Politicii de Cookie. Prin continuarea navigării pe Website-ul nostru confirmi acceptarea utilizării fişierelor de tip cookie conform Politicii de Cookie.
Aceast anunt nu mai este activ !
vandut

Casă individuală în Sânmihaiul Român, 500 mp teren, 0% COMISION!

Sanmihaiu Roman, Sud-Est

125.000€
ID: P211539 933
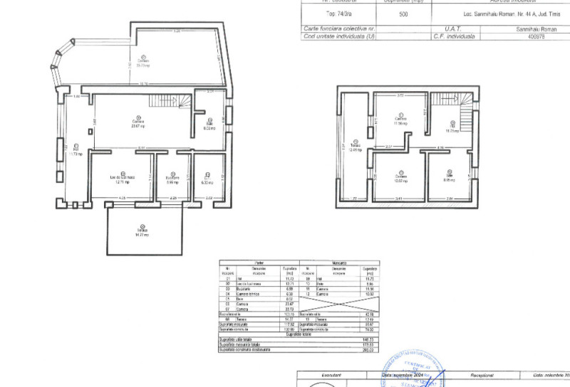
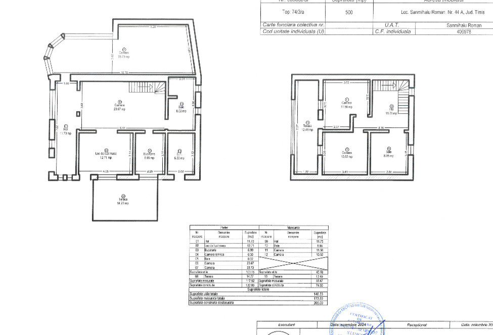
5 Camere 2 Bai 146.33 m2 500 m2 teren
  • Nr. camere:5
  • S. utila:146.33 mp
  • S. construita:176.00 mp
  • S. teren:500.00 mp
  • Nr. bucatarii:1
  • Nr. bai:2
  • Nr. balcoane:1
  • Nr. parcari:5
  • Front stradal:20.00 m
  • Nr. fronturi:2
  • An constructie:2007
  • An renovare:2018
  • Structura rezistenta:Beton
  • Regim inaltime:P+M
  • Orientare:Sud-Est
  • Risc seismic:Clasa I
  • Clasa energetica:B
  • Consum specific:107.16
  • Indice emisii:148.67

Casă individuală de vânzare în Sânmihaiul Român – 0% COMISION!

Traiconi Imobiliare îți oferă spre achiziție o casă individuală situată în Sânmihaiul Român, ideală pentru cei care caută liniște, confort și spațiu generos, la doar câțiva kilometri de Timișoara.

Caracteristici principale:
• Suprafață utilă: 146,33 mp
• Suprafață teren: 500 mp
• Dublu front stradal, poziționare excelentă
• Construcție solidă, compartimentare practică și funcțională

Compartimentare:
Parter:
• Hol primitor
• Living spațios și luminos
• Dormitor
• Bucătărie complet mobilată și utilată, cu acces direct pe terasă
• Grup sanitar

Mansardă:
• Două dormitoare, ambele cu ieșire pe balcon
• Baie modernă
• Pod spațios pentru depozitare

Dotări și beneficii:
• Geamuri și uși din termopan – eficiență energetică și confort termic ( clasa energetica B )
• Aer condiționat ( 2 aparate Daikin )
• Bucătărie complet mobilată și utilată ( mașină de spălat vase )
• Fosă septică de 3 m³
• Curte pavată, cu locuri de parcare pentru până la 5 mașini
• Terasă amenajată, foișor și zonă pentru grătar
• Grădină cu pomi fructiferi maturi

Avantaje:
Spațiu generos și compartimentare inteligentă, ideală pentru o familie
Zonă liniștită, aproape de Timișoara
Curte și grădină amenajate, perfecte pentru relaxare
Se vinde cu 0% comision pentru cumpărător

Localizare:

Sânmihaiul Român – o zonă liniștită și în plină dezvoltare, aflată la doar 10–12 km de Timișoara, cu acces rapid către oraș.


Pentru detalii sau programarea unei vizionări:
Traiconi Imobiliare – 0735 04 04 09
Casa ta, visul tău, fără comision!

Utilitati
  • Utilitati generale: Curent, Apa, Fosa septica
  • Sistem incalzire: Convectoare
  • Climatizare: Aer conditionat
Finisaje
  • Izolatii: Exterior
  • Pereti: Vopsea lavabila, Faianta
  • Podele: Parchet, Gresie
  • Stare: Finisat
  • Usa intrare: PVC
  • Usa interior: PVC
Dotari
  • Spatii utile: Spatiu depozitare, WC Serviciu
  • Bucatarie: Mobilata, Utilata
  • Contorizare: Apometre
  • Mobilat: Partial
  • Imobil: Curte, Gradina

NU AI GASIT PROPRIETATEA DORITA ?

Lasati-ne sa va trimitem oferte portrivite pe email !

0735040409
Printeaza

Recomandari

Filtreaza